Unsere Scheune – Ein Raum mit Geschichte, Ort für Zukunft
Die Scheune in Bröhsen soll ein Begegnungsort werden. Wir verbinden hier die Vergangenheit mit der Zukunft und gestalten den ländlichen Raum als Lernort.
Willkommen bei Zur Halsbreche 8 – einem echten Schatz aus Bröhsen!

Denkmalgeschützte Fachwerkscheune in Bröhsen (Grimma)
Was vor über 200 Jahren begann, spürt man heute noch in jedem Stein und Balken dieses traditionellen Vierseitenhofs. Unsere Scheune ist ein altes Schmuckstück, welches in den vergangenen Jahren vor sich hinschlummerte.
Doch der Hof ist nicht nur ein Kulturdenkmal und Zeitzeuge vergangener Tage, sondern auch eine Einladung in die Zukunft: Wir sehen diesen Ort als lebendige Verbindung von Geschichte und Gemeinschaft. Wo früher Viehhaltung, Ackerbau und Selbstversorgung den Alltag prägten, möchten wir heute Begegnung, Austausch und soziales Miteinander fördern.
Die alte Hofstruktur mit ihren historischen Gebäuden ist für uns ein Symbol dafür, wie Gemeinschaft und Nachhaltigkeit zusammengehören – damals wie heute. Mit Respekt vor der Tradition schaffen wir Raum für Menschen jeden Alters, die gemeinsam etwas bewegen wollen.
Hier spürt man, wie das dörfliche Leben früher wirklich war – authentisch, bodenständig und mit viel Herz.

Kennst du schon unsere Scheunensage?
Historie des Hofes
Unser Hof besteht aus zwei Seitengebäuden, einer Fachwerkscheune, die stolz die Jahreszahl „1810“ trägt, mit einem Satteldach und einer Toranlage – ein echtes Zeitzeugnis! Die Wirtschaftsgebäude sind zweigeschossig, mit massivem Erdgeschoss und charmantem Fachwerk im Obergeschoss, dazu Holztraufe und Satteldach. All das erzählt von der bäuerlichen Wirtschaftsweise vergangener Zeiten.
Der Hof ist nicht nur ein wunderschöner Blickfang, sondern auch offiziell als Kulturdenkmal in der Denkmalliste des Landesamtes für Denkmalpflege Sachsen verzeichnet. Das macht ihn zu einem wichtigen Stück Geschichte, das den ländlichen Alltag von damals lebendig hält: Viehhaltung, Ackerbau und Selbstversorgung – genau das spiegeln Hofstruktur und Gebäude wider.


Die Scheune – Tradition trifft Gemeinschaft
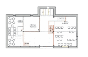
Unsere Vision: Die Scheune soll zu einem lebendigen Treffpunkt für alle werden – ein Ort für Begegnung, Austausch und gemeinsame Erlebnisse. Auf rund 170 m² wollen wir Raum schaffen für gemeinnützige Angebote für Jung und Alt. Die ersten Umbaupläne nehmen gerade Gestalt an. Dabei ist uns wichtig, behutsam und nachhaltig vorzugehen – mit Blick auf den Denkmalschutz und der Verwendung natürlicher Materialien. Der Charme des Alten soll erhalten bleiben, während Neues entsteht.
Geplant sind unter anderem: ein flexibler Multifunktionsbereich, der sogar als Vorführraum genutzt werden kann, eine gemütliche Sitzecke zum Verweilen und ein Spieleboden über einer kleinen Bar.
Möchtest du den Ausbau der Scheune unterstützen?
Die Scheune wächst und das gelingt nur gemeinsam. Ob mit einer Spende, tatkräftiger Hilfe oder als Projektpartner: Deine Unterstützung macht diesen besonderen Ort möglich. Gestalte mit uns einen Raum für Begegnung, Bildung und Gemeinschaft im ländlichen Raum.